Exhumierungen in Sandbostel 1954-1956 –
eine wissenschaftliche Darstellung

von Andreas Ehresmann (Projektkoordinator der Stiftung Lager Sandbostel)

Derzeit wird in den regionalen Medien eine teils sehr vehemente Debatte um die angemessene Nutzung des Geländes des ehemaligen Kriegsgefangenen- und KZ-Auffanglagers Sandbostel geführt. Dabei geht es unter anderem um den Neubau eines Einfamilienhauses auf dem Vorplatz der ehemaligen Desinfektion/Entlausung sowie um dort vor Baubeginn nicht durchgeführte archäologische Untersuchungen. In diesem Zusammenhang wird immer wieder auch auf die würdelose Bestattung Tausender KZ-Häftlinge (und in geringerer Anzahl Kriegsgefangener) in Massengräbern auf und neben dem ehemaligen Lagergelände (dem heutigen »Gewerbegebiet Immenhain«) eingegangen, die sich, so in einigen Artikeln zu lesen, teilweise heute noch anonym und mittlerweile eingeebnet hier befinden sollen.

An dieser Stelle sollen der Neubau des Einfamilienhauses sowie die Debatte darum nicht formalrechtlich oder moralisch-ethisch bewertet werden, sondern allein die von den Diskutanten vorgebrachten Behauptungen zu diesem sehr komplexen und vor allem sehr sensiblen Thema richtiggestellt werden.

Vielleicht trägt dies zu einer dringend notwendigen Versachlichung der Diskussion um die Möglichkeiten und die Grenzen der Nutzung dieses ehemaligen nationalsozialistischen Lagerareals bei.

Die Geschichte des diskutierten Baugrundstücks

Bei dem in den Zeitungs- und Debattenbeiträgen immer wieder angeführten Baugrundstück handelt es sich nicht – wie häufig behauptet – um den ehemaligen Appellplatz des Kriegsgefangenen-Mannschafts-Stammlagers (Stalag) X B. Entsprechend der damaligen »Dienstanweisung über Raumbedarf, Bau und Einrichtung eines Kriegsgefangenenlagers« (H.Dv. 38/12) waren die »Antreteplätze«, respektive die Appellplätze, in den rückwärtigen Bereichen der massiven Unterkunftsbaracken an der Lagerstraße angelegt. Nachdem ab 1940 in einer zweiten Bauphase zur Erhöhung der Belegungszahlen auf 30.000 Kriegsgefangene weitere hölzerne Unterkunftsbaracken gebaut worden waren, fanden die Appelle barackenweise auf den Freiflächen zwischen den Gebäuden statt.

Das Areal, auf dem kürzlich das Einfamilienhaus errichtet wurde, war der Freibereich vor der Entlausungsanlage/Desinfektion im so genannten Vorlager des Kriegsgefangenenlagers. Hier mussten die Kriegsgefangenen bei ihrer Aufnahme in das Stalag X B (und unregelmäßig auch während ihres Lageraufenthalts) warten, bis die Kleidung und sie selbst desinfiziert waren. Vor allem im Winter 1941/42 sind an diesem Ort Hunderte zumeist sowjetische Kriegsgefangene erfroren, während sie bei Minustemperaturen unbekleidet auf ihre Kleidung warten mussten. Die Leichname der verstorbenen Gefangenen wurden mit Karren oder Fuhrwerken auf den etwa 2,5 km entfernten Lagerfriedhof im Dorf Sandbostel gebracht (Sandbostel I, die heutige »Kriegsgräberstätte Sandbostel«) und dort in Massengräbern bestattet. Im Archiv der Gedenkstätte Lager Sandbostel liegen einige Zeitzeugenaussagen über die entwürdigende Beerdigung der sowjetischen Kriegsgefangenen vor. Da das Stalag X B in Sandbostel über einen 1941 eigens eingerichteten Friedhof verfügte, ist es unwahrscheinlich, dass zu diesem Zeitpunkt inmitten des Lagerareals Massengräber für verstorbene Kriegsgefangene angelegt wurden. Derartiges ist auch für andere Kriegsgefangenenlager nicht belegt.

Tote KZ-Häftlinge

Ab dem 12. April 1945 wurden nachweislich 1.126 verstorbene KZ-Häftlinge, die ab diesem Zeitpunkt mit so genannten »Evakuierungstransporten« aus mehreren geräumten KZ-Außenlagern und dem Stammlager KZ Neuengamme in das Stalag X B kamen, in Massengräbern an einem Weg zum nahe gelegenen Dorf Mintenburg (Sandbostel II) bestattet. Nur 27 Tote des KZ-Auffanglagers wurden auf dem Lagerfriedhof (Sandbostel I) beigesetzt. Die KZ-Häftlinge blieben in dem ehemaligen Marinelager (Marlag), einem geräumten Teil des Kriegsgefangenenlagers, weitgehend sich selbst überlassen.

Bereits auf den bis zu zehn Tage dauernden Transporten waren viele Häftlinge gestorben. In Sandbostel forderten Unterernährung und Krankheiten weitere um die Zweitausend Todesopfer. Auch nach der Befreiung des Stalag X B und des KZ-Auffanglagers am 29. April 1945 durch die britische Armee starben trotz eingeleiteter Hilfsmaßnahmen noch Hunderte Menschen an Entkräftung und Krankheiten.

Nachdem in den letzten Kriegstagen bei fanatischen Abwehrkämpfen eine kleine Brücke über den Fluss Oste am 24. April 1945 durch Wehrmachtssoldaten eines deutschen Panzerverbandes gesprengt und damit die einzige Zuwegung zum Lagerfriedhof zerstört wurde, wurde begonnen, die ab diesem Zeitpunkt im Stalag X B gestorbenen KZ-Häftlinge in Massengräbern direkt auf dem Lagerareal nahe des Marlag (KZ-Auffanglager) und des Zivilinternierungslagers (Ilag) zu bestatten (Sandbostel IVa und IVb, zusammen 496 Tote).

Auch nach der Befreiung des Stalag X B durch britische Militärverbände am 29. April 1945 starben noch hunderte befreite KZ-Häftlinge, in dem – im ehemaligen Wachmannschaftenlager angelegten – britischen Notlazarett »10. (Br.) Casuality Clearing Station R.A.M.C.«. Die Leichname wurden Anfangs ebenfalls in den Massengräbern Sandbostel IVa und IVb, überwiegend aber in einem neben dem Notlazarett angelegten Gräberfeld (»Garagenfriedhof«, Sandbostel III, 525 Tote) in Doppelgräbern bestattet. Soweit die Namen der Verstorbenen bekannt waren, wurden diese auf schlichten Holzkreuzen verzeichnet.

Die Würdigung der Toten durch die britische Armee

Neben der Organisation der Notversorgung von etwa 20.000 befreiten Kriegsgefangenen und KZ-Häftlinge, begann die britische Armee auch damit, alle Massengräber und Gräberfelder um das befreite Lager herum mit Gedenksteinen zu kennzeichnen. Im Eingangsbereich des ehemaligen Kriegsgefangenen- und KZ-Auffanglagers Stalag X B wurde zudem ein Gedenkort für die zu diesem Zeitpunkt 2.070 verstorbenen KZ Häftlinge eingerichtet. Nach dem Abzug der britischen Armee Ende 1948 wurde der Gedenkstein im Übrigen von unbekannter Hand entfernt.

Es ist sehr unwahrscheinlich, dass die britische Armee bei diesem respektvollen Gedenken kurz zuvor angelegte Massen- oder Einzelgräber, die sich auf dem Vorplatz der Entlausung und damit inmitten des befreiten und ab Juni 1945 als britisches Internierungslager (No. 2 CIC) genutzten Lagers befanden, »übersehen« hat.

Vernachlässigung der Massengräber

Nachdem die britische Armee das Internierungslager 1948 aufgelöst hat und abgerückt war, wurden die verschiedenen Grabanlagen in den folgenden Jahren nur aufgrund von Beschwerden ehemaliger KZ-Häftlinge und Angehöriger gepflegt. Im Juni 1950 war zunächst die Gestaltung der Massengräber außerhalb des verkleinerten und mittlerweile als Strafgefängnis genutzten Lagerareals, später dann auch die im Strafgefängnis selbst liegenden Gräber Sandbostel IVa und IVb abgeschlossen. Der damalige Leiter des Strafgefängnisses schrieb in diesem Zusammenhang, dass insbesondere diese Gräber häufig von ausländischen Gästen besucht wuerden.

Die Grabanlagen wurden jedoch erneut vernachlässigt und einige Gedenksteine sogar entfernt. Eine Gruppe ehemaliger KZ-Häftlinge aus Frankreich und der Arbeitsgemeinschaft Neuengamme fand im April 1952 sehr verwahrloste Grabanlagen vor. Nach einer Intervention des französischen Gräberoffiziers wurde 1953/54 die grundlegende Umgestaltung der Friedhöfe geplant.

Bei verschiedenen Gedenk- und Forschungsfahrten wurden die Massengräber um das ehemalige Kriegsgefangenen- und KZ-Auffanglager herum sehr genau mit Fotografien und in jeweils übereinstimmenden Lageplänen dokumentiert. Vor allem die Überlebenden waren bemüht, alle Grablagen ihrer verstorbenen Kameraden Verstorbenen würdevoll memoriert zu wissen.

Die Untersuchung der Friedhöfe und Massengräber

Eine grundlegende Untersuchung der Massengräber fand ab dem 6. Juli 1954 durch die »Mission de Recherche des Victimes de la Guerre« (Untersuchungsmission für Kriegsopfer) statt. Im Auftrag der französischen Botschaft und auf Grundlage der »Convention sur le Reglement de certains Problèmes nés de la Déportation de France« vom 23. Oktober 1953 sollten alle identifizierbaren Gebeine französischer KZ-Häftlinge nach Frankreich überführt und in würdevollen Ehrengräbern bestattet werden.

Im Rahmen der sehr umfangreichen Untersuchung wurden zwischen 1954 und 1956 insgesamt 2.780 Gräber geöffnet, darunter alle bekannten Massengräber (Sandbostel II sowie IVa und IVb), das Gräberfeld bei dem ehemaligen Notlazarett (Sandbostel III), einige Einzelgräber mit bestatteten KZ-Häftlingen auf dem Lagerfriedhof (Sandbostel I) und einzelne Grablagen in Dörfern der Umgebung. Die Leichen wurden exhumiert und forensisch untersucht; die identifizierten französischen Gebeine überführte man nach Frankreich. Die Gebeine von Häftlingen anderer Nationen sowie die der unbekannten Toten wurden in das Gräberfeld II auf den ehemaligen Lagerfriedhof (Sandbostel I, der heutigen »Kriegsgräberstätte Sandbostel«) umgebettet. Hier erhielten die meisten Gräber einen inzwischen entfernten Kissenstein mit der Aufschrift »Unbekannt«. Durch belgische und niederländische Gräberdienste wurden später weitere identifizierte Gebeine verstorbener KZ-Häftlinge nach Belgien und in die Niederlande überführt.

Exhumierungsprotokolle als Grundlage der Schicksalsklärung und der Forschung

Im Rahmen der Gedenkfeier am 29. April 2010, dem 65. Jahrestag der Befreiung des Kriegsgefangenen- und KZ-Auffanglagers Stalag X B Sandbostel, überreichte der Verteidigungsattaché an der französischen Botschaft in Berlin, General Bruno Pinget, die tabellarische Zusammenstellung der seinerzeitigen Exhumierungsprotokolle der französischen Mission de Recherche (dem französischen Pendant des Volksbunds Deutsche Kriegsgräberfürsorge) der Stiftung Lager Sandbostel. Die Dokumente stammen aus dem Archiv des französischen Verteidigungsministeriums. In der Liste sind alle zwischen 1954 und 1956 exhumierten Gebeine aufgelistet. Bei insgesamt 2.780 Exhumierungen wurde von 1.073 Toten die Häftlingsnummer ermittelt. 149 konnten namentlich identifiziert werden. Entgegen des Standes von 1956 lassen sich heute noch weitere Namen den Häftlingsnummern zuordnen.

Im Juni 2010 erhielt die Gedenkstätte Lager Sandbostel zudem vom Archiv der KZ-Gedenkstätte Dachau aus dem Nachlass des deutschen Arztes Günther Paul Schulz 509 Fotos von Skelettteilen sowie 23 Fotos von Exhumierungen, forensischen Untersuchungen und Umbettungen. Günther Paul Schulz war zwischen 1954 und 1956 als Pathologe und Forensiker an den Exhumierungen der Gebeine aus den Einzel- und Massengräbern An der Höhne, Brillit, Mulsum, Sandbostel I, Sandbostel II und Sandbostel IV beteiligt.

In seinem Nachlass findet sich auch ein Lageplan, in dem alle von der technischen Abteilung der »Mission de Recherche des Victimes de la Guerre« identifizierten Massengräber um das Kriegsgefangenen- und KZ-Auffanglager Sandbostel herum exakt eingetragen sind.

Dabei handelte es sich um folgende oben bereits mehrfach erwähnte Massengräber und Gräberfelder:

- Sandbostel I: ehemaliger Lagerfriedhof Sandbostel (heutige »Kriegsgräberstätte Sandbostel«)

- Sandbostel II: Massengrab an der Abzweigung nach Mintenburg

- Sandbostel III: so genannter »Garagenfriedhof«, Doppelgräber von nach der Befreiung verstorbenen KZ-Häftlingen beim ehemaligen Wachmannschaftenlager, wo sich nach der Befreiung das britische Notlazarett befand (das heutige Heinrichsdorf)

- Sandbostel IV a und b: Massengräber auf dem ehemaligen Lagergelände Stalag X B

Die hier angeführten Fakten und vor allem die aufgezeigte gründliche Untersuchung durch die »Mission de Récherche des Victimes de la Guerre« lassen es aus wissenschaftlicher Sicht unwahrscheinlich erscheinen, dass im Bereich des Einfamilienhaus-Neubaus – dem Vorplatz der ehemaligen Entlausung – zu Lagerzeiten oder nach der Befreiung Massen- oder Einzelgräber angelegt worden sind und dass es auf oder um das Areal des ehemaligen Kriegsgefangenen- und KZ-Auffanglagers Stalag X B herum noch eingeebnete Massengräber gibt.

Es wäre einer durchaus notwendigen aber versachlichten Diskussion sicherlich dienlich, wenn dieses vor allem auch aus Respekt den zehntausenden Opfern gegenüber berücksichtigt würde.

Der Fall Georges R. eignet sich möglicherweise als hervorgehobens Einzelbeispiel der bis heute aktuellen Recherche nach dem Schicksal verstorbener KZ-Häftlinge, der heutigen Möglichkeiten und der Darstellung von Forschungsdesideraten

Georges R.

Am 12. April 2010 erhielt die Gedenkstätte Lager Sandbostel eine Anfrage der Französischen Verbindungsmission beim Internationalen Suchdienst (ITS) in Bad Arolsen.

Auf Bitten des Sohnes wurde in Sandbostel angefragt, ob es im Archiv oder der Datenbank der Gedenkstätte weitergehende Informationen zu dem französischen KZ-Häftling Georges R. gibt. Neben den persönlichen Lebensdaten von Georges R. konnte die Französische Verbindungsmission lediglich die Häftlingsnummer aus dem Konzentrationslager Neuengamme mitteilen.

Bei einer Datenbankabfrage konnte im Archiv der Gedenkstätte kein Eintrag zu Georges R. gefunden werden.

Die Häftlingsnummer 59037 fand sich jedoch ohne eine namentliche Zuordnung in der tabellarischen Auflistung der in Sandbostel durchgeführten Exhumierungen aus dem Archiv des französischen Verteidigungsministeriums, die der Stiftung Lager Sandbostel Ende April 2010 übergeben worden war.

Mit der hieraus hervorgehenden Exhumierungsnummer 342 konnten nunmehr zwei Fotos der Gebeine aus dem Nachlass des deutschen Pathologen Günther Paul Schulz Georges R. zugeordnet werden.

Seinerzeit gelang es den Medizinern nicht, den untersuchten Gebeinen den Namen von Georges R. zuzuordnen. Heute ist dieses durch eine Analyse der Daten aus den verschiedenen Beständen teilweise möglich.

Somit konnte dem Sohn von Georges R. zumindest die Auskunft erteilt werden, dass sein Vater in Sandbostel verstorben und anonym bestattet worden ist. Nach dem derzeitigen Forschungstand ist die konkrete Grablage auf dem Gräberfeld II der heutigen Kriegsgräberstätte in Sandbostel, jedoch noch unbekannt. Aber auch hier wird intensiv geforscht, um diese Lücke in dem Datenbestand perspektivisch zu schließen.

Abbildungen:

- Abbildung 001

Die im Bereich des KZ-Auffanglagers Sandbostel (südöstlicher Bereich des ehemaligen Stalag X B) angelegten KZ-Massengräber (Sandbostel IVb). In der Bildmitte ist ein kleiner Gedenkstein für die verstorbenen KZ-Häftlinge zu erkennen. Foto: A. Boelaars, undatiert [Mai 1945] (Privatbesitz Piet Dam, Niederlande)

- Abbildung 002

Plan mit allen lokalisierten Massengräbern und Friedhöfen um das ehemalige Stalag X B . Der Plan wurde im April 1952 nach einer Untersuchungsreise französischer ehemaliger KZ-Häftlinge und der Arbeitsgemeinschaft Neuengamme von Alfred Baumbach erstellt.  (Hans-Schwarz Nachlass, Archiv KZ Gedenkstätte Neuengamme)

- Abbildung 003

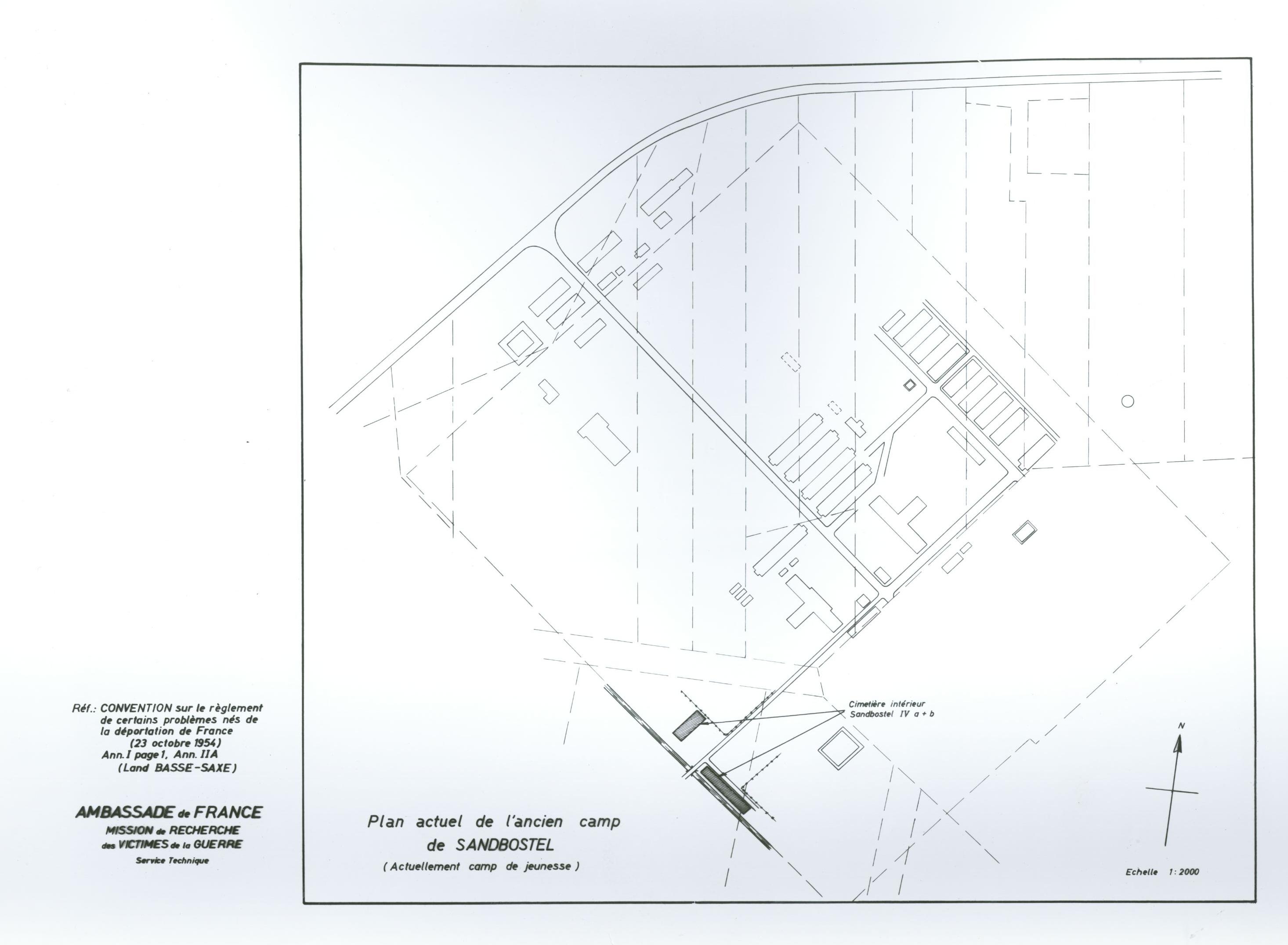
Lageplan des ehemaligen Stalag X B. Der von der Mission de Recherche des Victimes de la Guerre erstellte Plan zeigt neben den erhaltenen Gebäuden die im südlichen (unteren) Bereich des ehemaligen Lagergeländes lokalisierten Massengräber (»Cimetière intérieur Sandbostel IVa + b«). (Archiv KZ-Gedenkstätte Dachau)

- Abbildung 004

Der deutsche Pathologe und Forensiker Günther Paul Schulz bei der Untersuchung von exhumierten Gebeinen verstorbener KZ-Häftlinge. Foto: unbekannt, undatiert [1954] (Archiv KZ-Gedenkstätte Dachau).

- Abbildung 005

Bei der Öffnung des Massengrabes »Sandbostel II« (am Weg in Richtung Mintenburg) geborgener Schädel eines KZ-Häftlings. Erkennbar ist ein Einschussloch in der Schädeldecke. Foto: vermutlich Günther Paul Schulz, undatiert (Archiv der KZ-Gedenkstätte Dachau)

- Abbildung 006

Auszug aus dem Exhumierungsprotokoll Nr. 1.364. Die Gebeine konnten dem französischen KZ-Häftling Léon Maurice P. zugeordnet werden. (Archiv des französischen Verteidigungsministerium, als Kopie im Archiv Gedenkstätte Lager Sandbostel)

- Abbildung 007

Särge mit den umgebetteten Gebeinen verstorbener KZ-Häftlinge auf dem Gräberfeld II des Lagerfriedhof Sandbostel (heutige »Kriegsgräberstätte Sandbostel«). Foto: vermutlich Günther Paul Schulz, undatiert [1954] (Archiv KZ-Gedenkstätte Dachau)


Andreas Ehresmann
Projektkoordinator Stiftung Lager Sandbostel
Leiter Gedenkstätte Lager Sandbostel

Greftstr. 5 | 27446 Sandbostel | Tel. 04764-810 520 | Fax. 04764-810 521
Mobil: 0173-933 59 42 | Mail: a.ehresmann@stiftung-lager-sandbostel.de